A FIRST HOME
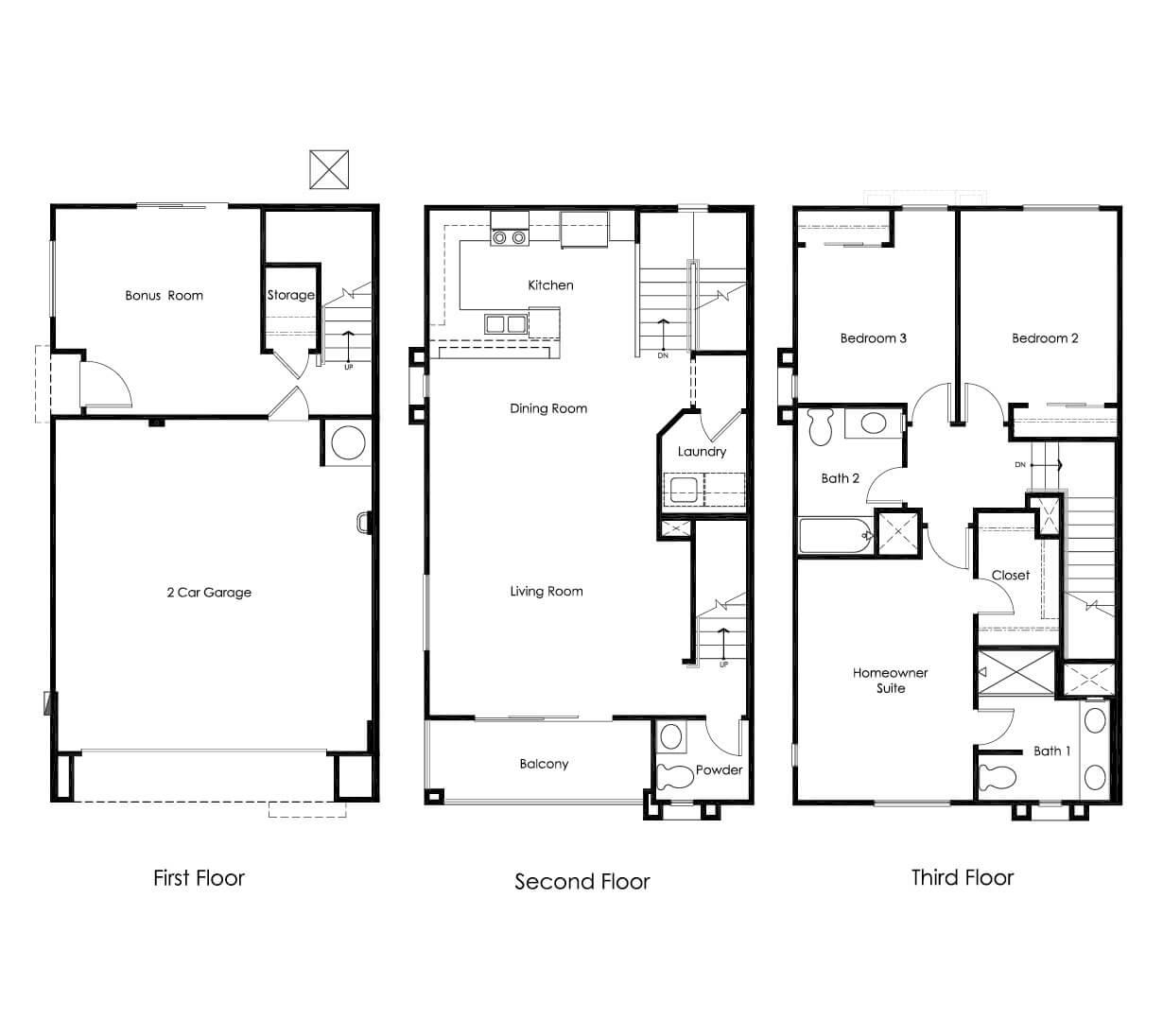
Touchstone Living is excited to introduce FIRST, a 1st-of-its-kind opportunity to open the door to homeownership. Along with a community pool and parks, these stunning new homes will offer 3 bedrooms, huge kitchens, oversized balconies, private backyards and 2-car attached garages. Our homes are Energy Star Certified and pre-wired for solar, offering additional savings on your electric bill each month.

