TSL MAIN
PROMOTIONS
Communities
COLUMN 1
Watercolor
Independence
Solaris: At Warm Springs
Solaris: At Russell & 215
Quick Move-In Homes
Why Touchstone
Own vs Rent
COLUMN 1
Why Buy
How Simple It Can Be
First Time Buyers FAQ
Homeowners
Blog
Menu Toggle
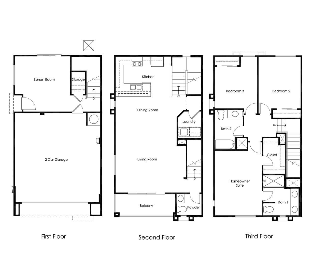
Plan 2
FIRST
$434,990
3-Bedrooms
2.5 Baths
1,850 SQ. FT.
Balconies
Private Yards
Solar Included!
First | Plan 2
Menu Toggle